Строительство в Москве и Московской области: +7 (4942) 30-26-56, +7 (903) 634-47-67, +7 (953) 650-55-61

Дом из профилированного бруса проект №188

Дом из профилированного бруса 140 на 190мм.

Баня, сауна, купель.

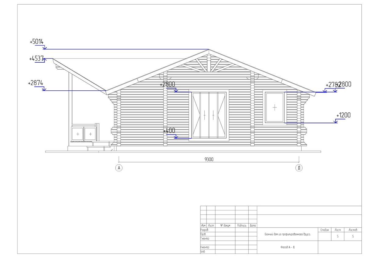
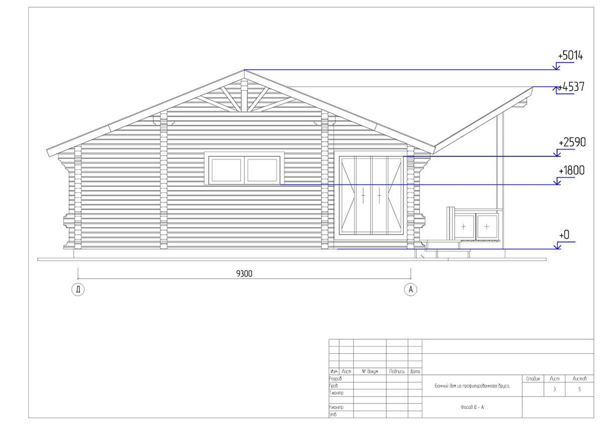
Габариты: 9,3 х 13.2 м

Площадь: 122 м2

Гостиная совмещённая со столовой: 39,22м2                                                                     

Кухня:  8,05 м2

Парная:  15,09 м2

Душевая:   7,82 м2

Сан узел:   2,85 м2

Купель:   8 м2

Терраса:  21 м2

Цена базового комплекта: уточняйте

Сруб собран под стропила, включая все работы и материалы

Фундамент ленточный
мелкозаглубленный 800х300мм
уточняйте
Фундамент свайно-винтовой
108/2,5мм
уточняйте
Кровля металлочерепица
(включая работы и материалы)
уточняйте

Вернуться к проектам

Основание дома Опорный брус 200х200 мм (фундамент свайно-винтовой)
Подкладочная доска 50х200 мм (фундамент ленточный)
Наружные стены Оцилиндрованное бревно с чашами по проекту, диаметр 240 мм
Внутренние перегородки Оцилиндрованное бревно с чашами по проекту, диаметр 240 мм
Лаги пола 1го и мансардного этажей Брус 100х200 мм с шагом 600 мм
Черновой пол Доска 25х100 мм с шагом 300 мм
Стропильная система Доска 50х200 мм с шагом 600 мм
Комплект расходных материалов Деревянные нагеля, джут, скобяные изделия

Остались вопросы по проекту? Заполните форму, и мы ответим вам в ближайшее время

Отправить сообщение