Строительство в Москве и Московской области: +7 (4942) 30-26-56, +7 (903) 634-47-67, +7 (953) 650-55-61

Гараж из клеёного бруса. Проект №85

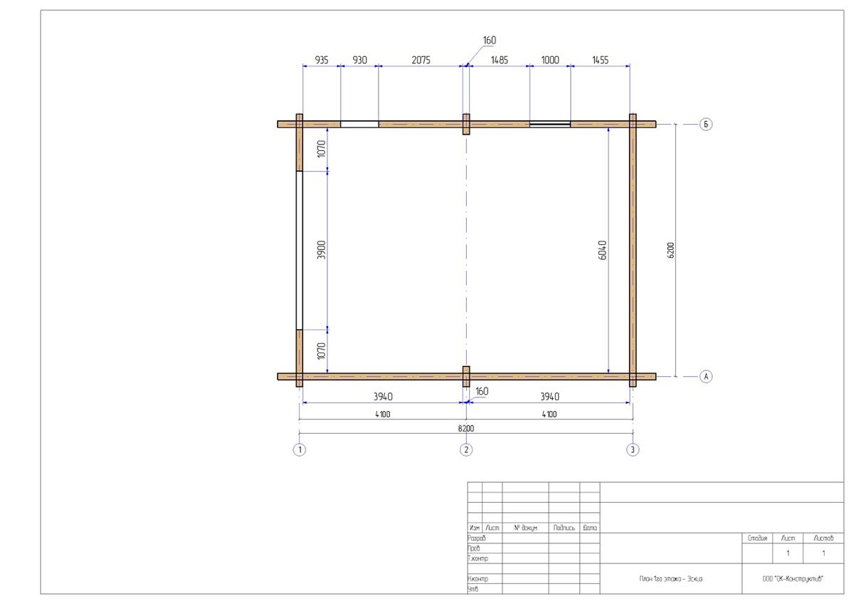
Гараж из клеёного бруса размер 8,2 на 6,2 метра.
Площадь 50м2.
Цена базового комплекта: уточняйте

Сруб собран под стропила, включая все работы и материалы

Фундамент ленточный
мелкозаглубленный 800х300мм
уточняйте
Фундамент свайно-винтовой
108/2,5мм
уточняйте
Кровля металлочерепица
(включая работы и материалы)
уточняйте

Вернуться к проектам

Остались вопросы по проекту? Заполните форму, и мы ответим вам в ближайшее время

Отправить сообщение