Строительство в Москве и Московской области: +7 (4942) 30-26-56, +7 (903) 634-47-67, +7 (953) 650-55-61

Баня из оц. бревна. Проект №85

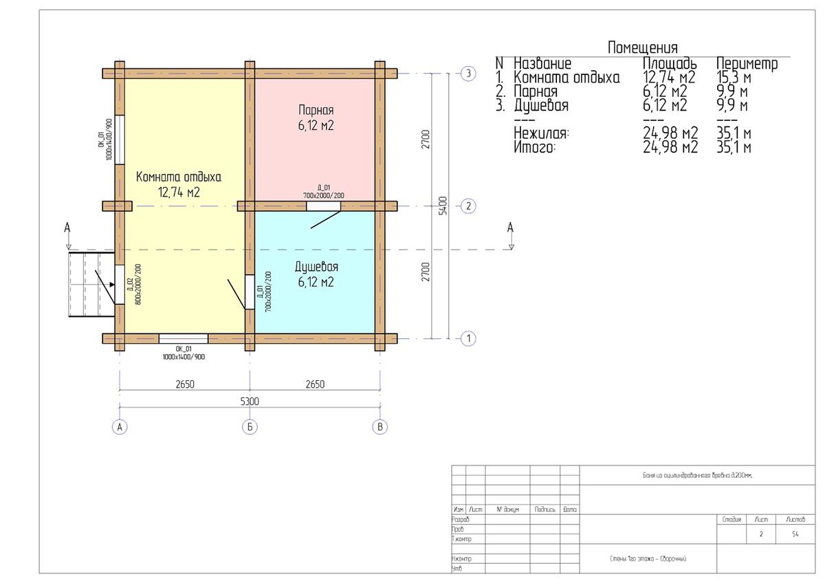
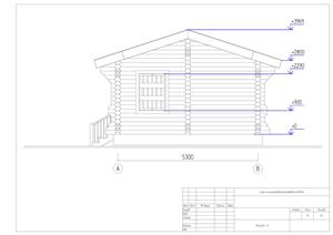
Баня из оцилиндрованного бревна д.220 мм

Каркас стен: бревно оцилиндрованное диаметром 220 мм.

Габариты: 5,3x5,4 м

Площадь: 30 м2

Парная 6,12м2

Душевая 6,12м2

Цена базового комплекта: уточняйте

Сруб собран под стропила, включая все работы и материалы

Фундамент ленточный
мелкозаглубленный 800х300мм
уточняйте
Фундамент свайно-винтовой
108/2,5мм
уточняйте
Кровля металлочерепица
(включая работы и материалы)
уточняйте

Вернуться к проектам

Остались вопросы по проекту? Заполните форму, и мы ответим вам в ближайшее время

Отправить сообщение