Строительство в Москве и Московской области: +7 (4942) 30-26-56, +7 (903) 634-47-67, +7 (953) 650-55-61

Участок 10 соток. С каркасным домом.

Продается

Каркасный дом с беседкой по адресу:

Костромская область, Костромской район, Бакшеевское сельское поселение, СНТ «Елховское», ул. Олимпийская, дом 4

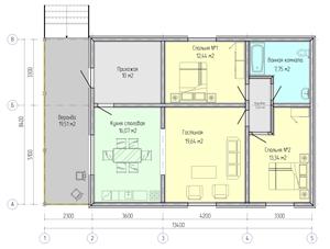
Общая площадь: Дома 102,72 кв.м.   В.т.ч. жилая    83,21 кв.м.  Веранда 19,51 кв.м.

Отопление:  Газовый котел BAXI ECO Life 24

Утеплитель пола, стен, кровля  200 мм. Теплые полы.

Канализация:     Станция Итал БИО-4 с дренажным насосом и пластиковым колодцем.

Водоснабжение: Скважина 15 м., Кессон БИО-С 2 тип, насос Aguastrang 3XP,  

 Гидроаккумулятор 100 л.

Электроснабжение: 15 кВт. По временной схеме.

Экстерьер: КликФальц 0,45, Сайдинг металлический ЭКО-Брус «Золотой орех»,

Софиты с центральной перфорацией.

Кровля: Мягкая «Шинглас Оптима», цвет серый.

Окна: ПВХ. Профиль 70-й. Komfort. Мерц.антрацит/белый.

Интерьер:  Потолок-краска Hasky Siberial белая. Стены- то же колерованное. Светло серый.

Полы-ламинат для теплых полов, класс 34

Люстры-в каждом помещении.

Мебель:         Кухонный гарнитур с раковиной и смесителем, ВП-4, Барная стойка.

Сан.узел:      Унитаз, Тумбочка, Раковина, Смеситель, Зеркало. Оригинальная душевая каб.

Веранда:      Террасная доска, перила, балясины, ступени из ДПК.

На участке рустановлена Беседка: Площадь 20 кв.м.(5х4), кровля мягкая, краска-графит.

Земельный участок 44:07:023601:5008, площадь 1009 кв.м.


Стоимость дома, участка и беседки:


8 500 000 р.


В стоимость входит:

Земельный участок   1 200 000 р.

Беседка            500 000 р.

Жилой дом      6 800 000 р.


Телефон для связи:


+7 953 643 22 81




Цена базового комплекта: уточняйте

Сруб собран под стропила, включая все работы и материалы

Вернуться к проектам

Остались вопросы по проекту? Заполните форму, и мы ответим вам в ближайшее время

Отправить сообщение